Skip County Header
Home
Albany
Hayward
Fremont
San Leandro
About the Building
Rates & Amenities
Floor Plans
Application
Photos
Contact Us
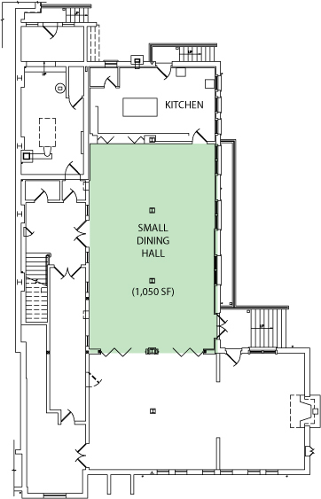
Floor Plans
Main Floor Plan
Basement Plan